

©王大丑
设计团队热衷于通过设计来营造自然的气息,将建筑设计的手法运用到室内,重视细节的呈现,使用最原始的材料清水混凝土作为建筑的主要肌理,提升建筑空间的尺度感。
感谢澜廷设计对gooood的分享
乔村创始人2017年在杭州创立了乔村二十八道.钱江世纪城店,这也是乔村和澜廷合作的首店。连续三年位列大众点评必吃榜。好的餐厅与设计从来都是相辅相成的,时隔三年,不同领域的合作伙伴再次携手。将饮食上升到美学的层次,严格甄选原材料,凭借对美食的研究、创作和极佳的审美,加之高雅格调的设计氛围,旨在为美食爱好者带来一场心灵之旅。

▲餐厅入口立面©王大丑

▲沿街的落地窗©王大丑

▲隐藏式的入口©王大丑
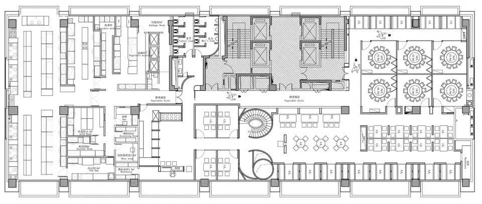
设计团队热衷于通过设计来营造自然的气息,将建筑设计的手法运用到室内,重视细节的呈现,使用最原始的材料清水混凝土作为建筑的主要肌理,提升建筑空间的尺度感。功能分区:一层为接待区、等候区、散座区域;二层为散座区、小包厢区域、厨房;三层主要是大包厢区域。

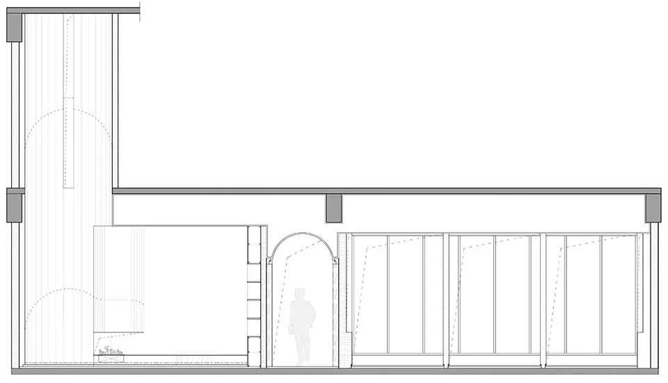
▲底层入口等候区剖面图©杭州澜廷设计

▲入口通道©王大丑
等候区:圆形的挑空区域直通二楼,对应底部等候区圆形卡座,与旋转楼梯交相呼应。搭配进口中古家具,尽显质朴之美。

▲等候区©王大丑

▲等候区圆形卡座与旋转楼梯交相呼应©王大丑

▲等候区细部©王大丑
散座区:设计师注重光影效果的打造,运用镂空几何砖,既能与清水混凝土的肌理统一,同时又能引进光影效果,增加趣味性,使散座区域既开放又私密,保证顾客的用餐体验。

▲散座区入口©王大丑


▲镂空几何砖使散座区域既开放又私密©王大丑

▲散座区©王大丑

▲统一的清水混凝土肌理©王大丑


▲散座区空间细部©王大丑

▲桌椅与灯具细部©王大丑
包厢区域:包含用餐区、水吧、品茶区及休闲区,采用木质和混凝土的搭配柔化空间,朴实无华的软装搭配为整个空间创造了最原始的体验。强调采光、尺度、私密感以及光影效果的营造,提供适合沉思和私人用餐的宁静而温馨的室内空间。尽量让不同的区域产生关联并保持各自独立。通过不同的光线、视觉和空间整合,诠释自然质朴的设计理念。

▲包厢休闲区©王大丑

▲适合沉思和私人用餐的宁静而温馨的室内空间©王大丑

▲强调采光、尺度、私密感以及光影效果的营造©王大丑


▲休闲区空间细部©王大丑


▲包厢©王大丑
过道:光与影的融合,尽显寂静质朴之美。空间整体风格运用单色调,搭配精致而细腻的摆件,用宁静、精致取代单一色调空间的沉闷和乏味。空间采用进口古董老家具,搭配原始清水混凝土的自然肌理,化繁为简,为空间营造一种舒适、自然、简朴的就餐环境。

▲过道©王大丑

▲精致而细腻的摆件©王大丑

▲光与影的融合©王大丑

▲餐厅logo©王大丑
项目图纸

▲底层平面图©杭州澜廷设计

▲二层平面图©杭州澜廷设计

▲三层平面图©杭州澜廷设计

▲立面图©杭州澜廷设计

▲用餐区剖面图©杭州澜廷设计
项目名称:乔村餐厅-未来科技城店
设计方:杭州澜廷设计
联系邮箱:351107069@
项目设计完成年份:2020年5月2020年12月
主创及设计团队:澜廷设计
项目地址:杭州市良睦路鼎创财富中心1幢A2座1-3楼
建筑面积:2000m²
客户:乔村餐厅
主要使用材料:实木、清水混凝土、定制家具及中古家具

gooood景观设计
小号
gooood室内设计
小号